
地 址:上海市金山区兴塔工业区
咨询电话:021-57362601
图文传真:021-33250343
电子邮箱:hanyuev@126.com
网 址:http://www.maiby.cn
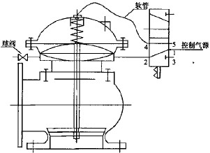
《膜片式快开排泥阀》(CJ/T196—2004) 城镇建设行业标准4.1 条规定:阀板的开启高度不小于公称通径的1/2。为解决排泥阀阀板的开启高度过大所产生的水锤,我们对排泥阀进行了改造,改造前如图1(a)所示,限位杆控制阀板开启高度为20 mm,球阀???,与大气相通。改造后如图1(b)所示,取消了限位杆,阀板开启高度为75 mm,球阀常闭,与气源连接,当停电或电磁阀损坏时,可打开球阀代替电磁阀工作。将电磁阀气孔2与排泥阀上腔顶部气孔用软管连接。气孔1 连接气源相连,气孔3 与大气相连,气孔4 与排泥阀下腔气孔用软管连接,气孔5 用减压排气阀与大气相连。

a 改造前 b 改造后
图1 排泥阀改造前后图
当电磁阀失电时,气孔1 与气孔2 通道打开,排泥阀上腔进气;气孔4 与气孔5 通道打开,排泥阀下腔内气体排入大气;气孔3 处于关闭状态。排泥阀缓慢关闭,水锤明显减小。这是由于气孔5 安装了减压排气阀,排泥阀阀板不会迅速落下,同时上腔进气保证了排泥阀阀板能缓慢下降,不会上下摆动。
当电磁阀得电时,气孔1 与气孔4 通道打开,排泥阀上腔进气;气孔2 与气孔3 通道打开,排泥阀下腔内气体排入大气;气孔5 处于关闭状态。排泥阀迅速开启。
改造后解决了排泥阀经常因小杂物而堵、震动大或排泥停不下来的问题,真正实现了排泥自动化,排泥运行的控制方法是通过时间继电器的整定,使排泥阀开启间隔时间、排泥时间设定为所需数值;减少了压缩空气的消耗;改造费用低。
网站首页