
地 址:上海市金山区兴塔工业区
咨询电话:021-57362601
图文传真:021-33250343
电子邮箱:hanyuev@126.com
网 址:http://www.maiby.cn
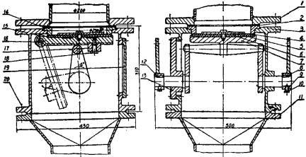
近期,我公司开发了一款新型快开式排泥阀,该阀特别适合装设于楼面或地面,需要间隙排出浆料或滤泥的设备(如各种间隙式加压过滤机、间隙式沉降槽等)上,既可降低设备的安装高度,又可充分显示阀门启闭快速、轻便、不污染环境等优点。本快开式排泥阀为拐轴结构原理,见图1。除部分零件采用钢件外,大部分零件用铸件或低碳钢板焊接均可。阀外观呈方框形状。阀门的开闭是通过操纵手柄,使相连的轴转动,因而焊接在轴上的拉臂牵动拉杆水平移动(见图2),带动拐轴臂9转过某一角度。这时,与拐轴臂用平键12固定在一起的拐轴8也同时转过某一角度。当拐轴由水平位置转到接近垂直水平的位置时,阀门被拐轴顶紧关闭,密压机即可进行工作。在操作过程中,虽然拐轴顶紧阀门时拐轴上承受的垂直于水平的反作用力很大,但此反作用力距离拐轴的力臂却相当短,加上需要克服的拐轴与阀门之间的摩擦力也不太大,而操纵的手柄却很长,所以操作者进行操作时并不感到费力。这就是此排泥阀最突出的特点。为了使阀门开启截面大,阀体3上部钻有一横通孔,孔中横穿阀门轴16,阀门7就固定在阀门轴16上,成铰链形式。为保证阀门在工作时开闭灵活可靠,阀门7上的铰链孔制成葫芦链扣形状,使阀门可以上下位移一定距离,以弥补由于制造误差而关不紧阀门。此外,为使拐轴顶紧阀门始终如图示位置,密封胶皮6与阀门7之间可加垫片调节。阀门7在开启过程中,为防止拐轴转动过位,阀门7上装有限位块17。为装卸拐轴方便和便于清理检查,阀体3上还装有可拆卸的端盖13及清理盖板19等另件。由于此阀结构简单,制造容易,装拆维修都比较方便,因而造价低廉,得到了采用。
此拐轴快升式排泥阀,设计承受工作压力为3公斤/厘米2,若使用单位需要承受压力更大的排泥阀,可重新设计拐轴,增大其直径,以使安全可靠。
图1 快开式排泥阀结构图
1.排泥管法兰 2.密封垫 3.阀体 4.紧固螺钉 5.压板 6.密封胶皮 7.阀门 8.拐轴 9.拐轴臂 10.止动螺钉 11.下简体法兰 12.平链 13.端盖 14.阀座 15.垫圈 16.阀门轴 17.限位块18.紧同螺钉 19.清理盏板 20.联接螺栓

图2 快开式排泥阀操纵机构示意图
1.拉杆 2.棘板 3.手柄 4.拉臂 5.轴
网站首页